
攒够了钱,一定要回老家盖一栋像样的房子。但现在的农村自建房,大多是千篇一律的欧式小洋楼,虽高大却冰冷。其实,最适合中国人的居住方式,从来不是向上堆叠的楼层,而是那抹横向延伸、藏风聚气的“白墙黛瓦”。
今天,我们要带大家看一套专为农村现代生活定制的新中式双层合院。它不仅仅是一个遮风避雨的住所,更是一个微缩的自然景观——它把阳光、微风和四季流转都“围”进了家里。在这里,长辈有晒太阳的长廊,孩子有跑跳的草坪,而你,有一处可以安放疲惫灵魂的茶室。

一、 平面布局:围合式之美,重塑邻里私密
这套房子的核心在于多重院落的围合布局。不同于普通的小洋楼,合院设计将建筑围绕中心庭院展开,形成了一个绝佳的私密微气候。
多重院落空间: 入户即是庭院,东南角设置了宽敞的入户庭院,不仅是进出的缓冲空间,更是停放车辆或晾晒农作物的绝佳场所。
中心景观庭院: 建筑呈“L”型与围墙合抱,中心留出一块开阔绿地。无论是清晨练太极,还是傍晚全家人围坐纳凉,这方院子就是家魂所在。
回廊连接: 通过连廊将各个功能区串联,即便在多雨的南方,穿梭于厨房、餐厅与客厅之间也无需打伞,体验感极佳。

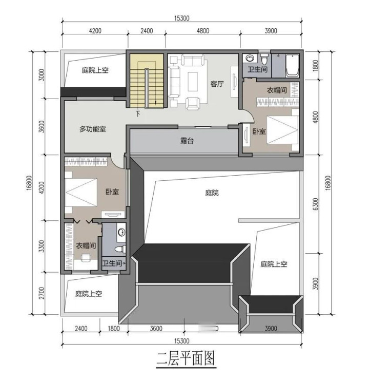
二、 建筑功能:动静分区,装下三代同堂的幸福尺度
如果说外观是房子的面子,那么内部功能就是里子。这套户型彻底打破了传统农村房大而空的尴尬,通过精细化布局,实现了生活、社交与私密的完美平衡。
1. 一层:人间烟火与待客之道
挑空客厅(精神领地): 客厅位于北侧轴线核心,挑空设计配合巨幕般的落地窗,将中心庭院的四季流转引入室内。这种“借景入室”的手法,不仅让空间感倍增,更让客厅成为了全家人的“精神堡垒”。
餐厨与茶室(社交纵深): 西侧餐厨区采取独立式布局,既符合中式烹饪重油烟的习惯,又保持了室内的清爽。最为亮眼的是与之相连的景观茶室——这是为男主人量身定制的社交空间。试想一下,好友来访,在此煮茶论道,窗外便是翠竹影影绰绰,这种体面感在乡里绝无仅有。
适老设计(亲情温度): 南侧精心设置了两间“暖心卧室”,避开了二层攀爬的劳累。房间距离卫生间仅一步之遥,且开窗即是南向采光,确保老人家住得通透、起居舒心。

2. 二层:私享时光与全能空间
五星级主卧套房: 二层主卧不再只是睡觉的地方,而是一个完整的私密生活区。独立的步入式衣帽间满足了女主人的收纳梦想,超大面积的景观卫浴甚至可以放下浴缸。忙碌一天后,在这里泡个澡,推窗便是星空,居住尊贵感直逼豪华酒店。
百变多功能室: 楼梯转角处的多功能空间,是家里的“变色龙”。它是孩子的乐高乐园,也是主人的静谧书房,甚至是家里的私人影院。随着家庭成员的成长需求,它可以灵活定义,永不过时。
长形揽景露台: 二层的户外长廊露台,是建筑与自然的二次对话。站在这里,低头可俯瞰自家院落的繁花似锦,抬眼可远眺故乡的连绵山脉或百亩良田。这种“高人一等”的视野,正是合院生活的惬意所在。

回乡建房,建的是一种久违的归属感。这套新中式合院,外表温润如玉,内里筋骨强韧。它收纳了老人的安稳晚年,安放了孩子纯真无邪的童年,也承载了我们这代人奋斗半生后的归心之梦。它不再是一个冰冷的建筑标本,而是一个有生命、有温度、能陪着一家人共同生长的“家”。
这不仅是一次居住的升级,更是一次对传统文化的致敬。如果您也厌倦了千篇一律的欧式洋楼,如果您也梦想着拥有一方能纳四季之美、能承三代同堂的院落,那么这套方案或许就是您寻找已久的答案。
网上股票配资提示:文章来自网络,不代表本站观点。